Montag-Freitag
8–12 und 13.30–17.30 Uhr


Favoriten
Menü
  • Anmeldeformular
    • Anmeldeformular
    • Anmeldeformular für Mietinteressenten
  • Dienstleistungen
  • Unternehmen
  • Weblinks

Kontakt  Impressum  Datenschutz

  • Home
  • 4.5 Zi-Wohnung

Beschreibung

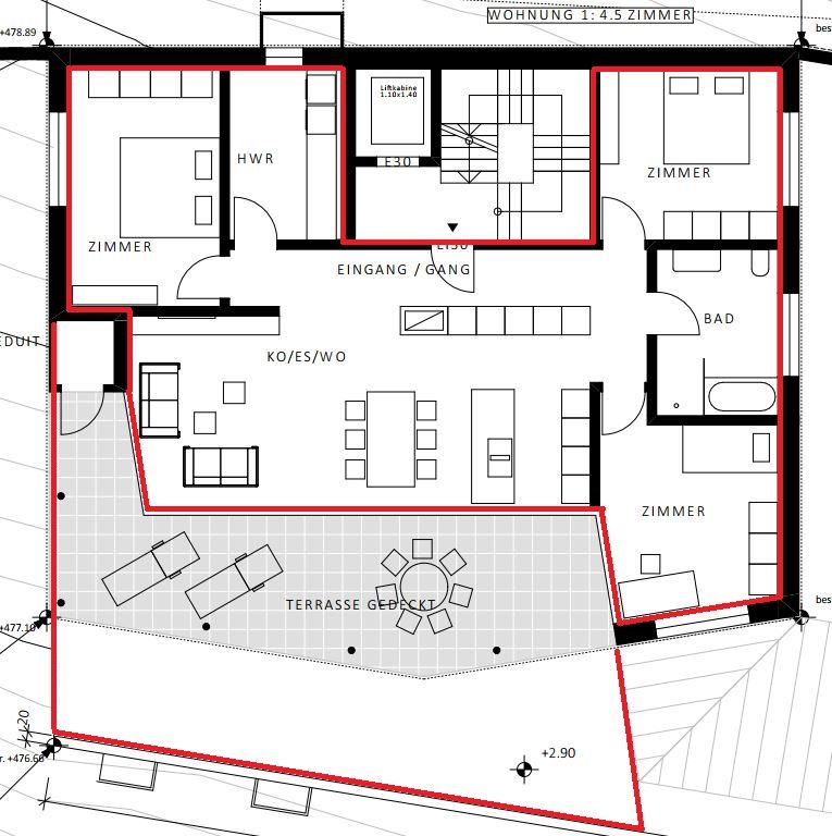
Diese moderne Wohnung in Eschen überzeugt durch ihre exklusive Lage mit atemberaubender Aussicht. Zwei zeitgemäss gestaltete Häuser beherbergen insgesamt 8 Mietwohnungen, die sich harmonisch in die malerische Umgebung einfügen. Die Architektur verbindet zeitgenössisches Design mit hoher Funktionalität und wurde gezielt darauf ausgerichtet, die beeindruckende Panoramaaussicht optimal zur Geltung zu bringen.

 

Die offene und helle Küche bildet das Herzstück des Wohnbereichs und ist mit einem Induktionsherd, einem Bora-Dampfabzug, einem Backofen inkl. Steamer, einem Geschirrspüler sowie einem Kühlschrank ausgestattet. Das Badezimmer verfügt sowohl über eine Badewanne als auch über eine komfortable Dusche. Die Wohnungseingangstüren aus edler Eiche (Massivholz) sowie das hochwertige Eichenparkett, das sich durch den gesamten Wohnbereich und die grosszügigen Schlafzimmer zieht, schaffen eine warme und einladende Wohnatmosphäre. Grosszügige Fensterfronten sorgen für viel Tageslicht und eröffnen einen beeindruckenden Blick auf die umliegende Landschaft.

 

Ein praktischer Hauswirtschaftsraum bietet zusätzlichen Stauraum für Haushaltsutensilien und Vorräte. Die sonnige Terrasse lädt zum Verweilen im Freien ein und begeistert mit einem Rundumblick sowie einer Panoramaaussicht, die zum Entspannen und Geniessen einlädt. Eine Fussbodenheizung in der gesamten Wohnung sorgt ganzjährig für angenehmen Wohnkomfort.

 

Die hauseigene Photovoltaikanlage ermöglicht den nachhaltigen Eigenverbrauch des erzeugten Stroms (ZEV – Zusammenschluss zum Eigenverbrauch). Ein Lift gewährleistet einen bequemen Zugang zur Wohnung und bietet zusätzlichen Komfort für alle Altersgruppen. Ein separates Kellerabteil schafft weiteren Stauraum für persönliche Gegenstände oder Sportausrüstung. Primarschule und Kindergarten befinden sich in unmittelbarer Nähe und sind über eine verkehrsarme Nebenstrasse sicher erreichbar.

 

Diese attraktive Wohnung vereint stilvolles Wohnen, hochwertige Ausstattung und eine privilegierte Lage – ideal für alle, die Wert auf Qualität, Komfort und ein besonderes Wohnumfeld legen.

 

Wenn Sie mehr über dieses Objekt erfahren möchten, rufen Sie uns an. Wir freuen uns auf Sie.

Beschreibung

Diese moderne Wohnung in Eschen überzeugt durch ihre exklusive Lage mit atemberaubender Aussicht. Zwei zeitgemäss gestaltete Häuser beherbergen insgesamt 8 Mietwohnungen, die sich harmonisch in die malerische Umgebung einfügen. Die Architektur verbindet zeitgenössisches Design mit hoher Funktionalität und wurde gezielt darauf ausgerichtet, die beeindruckende Panoramaaussicht optimal zur Geltung zu bringen.

 

Die offene und helle Küche bildet das Herzstück des Wohnbereichs und ist mit einem Induktionsherd, einem Bora-Dampfabzug, einem Backofen inkl. Steamer, einem Geschirrspüler sowie einem Kühlschrank ausgestattet. Das Badezimmer verfügt sowohl über eine Badewanne als auch über eine komfortable Dusche. Die Wohnungseingangstüren aus edler Eiche (Massivholz) sowie das hochwertige Eichenparkett, das sich durch den gesamten Wohnbereich und die grosszügigen Schlafzimmer zieht, schaffen eine warme und einladende Wohnatmosphäre. Grosszügige Fensterfronten sorgen für viel Tageslicht und eröffnen einen beeindruckenden Blick auf die umliegende Landschaft.

 

Ein praktischer Hauswirtschaftsraum bietet zusätzlichen Stauraum für Haushaltsutensilien und Vorräte. Die sonnige Terrasse lädt zum Verweilen im Freien ein und begeistert mit einem Rundumblick sowie einer Panoramaaussicht, die zum Entspannen und Geniessen einlädt. Eine Fussbodenheizung in der gesamten Wohnung sorgt ganzjährig für angenehmen Wohnkomfort.

 

Die hauseigene Photovoltaikanlage ermöglicht den nachhaltigen Eigenverbrauch des erzeugten Stroms (ZEV – Zusammenschluss zum Eigenverbrauch). Ein Lift gewährleistet einen bequemen Zugang zur Wohnung und bietet zusätzlichen Komfort für alle Altersgruppen. Ein separates Kellerabteil schafft weiteren Stauraum für persönliche Gegenstände oder Sportausrüstung. Primarschule und Kindergarten befinden sich in unmittelbarer Nähe und sind über eine verkehrsarme Nebenstrasse sicher erreichbar.

 

Diese attraktive Wohnung vereint stilvolles Wohnen, hochwertige Ausstattung und eine privilegierte Lage – ideal für alle, die Wert auf Qualität, Komfort und ein besonderes Wohnumfeld legen.

 

Wenn Sie mehr über dieses Objekt erfahren möchten, rufen Sie uns an. Wir freuen uns auf Sie.

Details

Objekt Nr.
1776
Lage
Erhöhte, ruhige Wohnlage
Ort
Eschen
Strasse
Landammannstrasse 1
Baujahr
2024
Bezugstermin
01.07.2026
Fläche ca.
118m2
Grundriss
PDF
Stockwerk
1.OG
Anzahl Zimmer
4.5
Nettomietzins
CHF 2600.-
Heiz-/Nebenkosten
CHF 300.- (Akonto)
Bruttomietzins
CHF 2900.–
Garagenplatz
CHF 100.–

Ausstattung

  • Offene, helle Küche (Eigentumsstandard)
  • Badezimmer mit Badewanne/Dusche 
  • Eichenparkett & Steinböden 
  • Fensterfronten 
  • Grosszügiger Hauswirtschaftsraum 
  • Sonnige Terrasse inkl. Reduit und Wasseranschluss  
  • Rundumblick/Panoramaaussicht 
  • Lift 
  • Kellerabteil 
  • Fahrradabstellbereich 
  • Wärmepumpe in Kombination Photovoltaikanlage 
  • Fussbodenheizung
  • Stromnutzung über Photovoltaikanlage 
Anmeldung
+423 375 80 80
Favorit
Drucken
Lageplan (Google Maps)
Teilen
Facebook
Twitter
E-Mail

Kontaktperson

Ing. Bau AG · Kompetenz in Immobilien
+423 375 80 80
vermietung(at)ingbau.li
  • Ing. Bau AG
    Immobilien
  • Rätikonstrasse 13
    Postfach 108
  • 9490 Vaduz
    Liechtenstein
  • T +423 375 80 80
    info(at)ingbau.li

Impressum
Datenschutz

Favoriten