Montag-Freitag
8–12 und 13.30–17.30 Uhr


Favoriten
Menü
  • Anmeldeformular
    • Anmeldeformular
    • Anmeldeformular für Mietinteressenten
  • Dienstleistungen
  • Unternehmen
  • Weblinks

Kontakt  Impressum  Datenschutz

  • Home
  • 4.5 Zi-Wohnung zu verkaufen

Beschreibung

In ruhiger, erhöhter und familienfreundlicher Lage in Triesen erwartet Sie diese attraktive 4.5-Zimmerwohnung mit grosszügigen Räumen, viel Tageslicht und einem durchweg angenehmen Wohnambiente. Die sonnige Aussichtslage mit Blick Richtung Rheintal unterstreicht die hohe Lebensqualität dieser Wohnlage und bietet ein ideales Zuhause für Menschen, die Ruhe und Weitsicht schätzen.

Der helle, offen gestaltete Wohn- und Essbereich bildet das Herzstück der Wohnung. Grosszügige Fensterfronten lassen viel natürliches Licht herein und schaffen eine freundliche, einladende Atmosphäre. Ein stilvolles Cheminée sorgt zusätzlich für wohlige Wärme und verleiht dem Raum eine besondere Behaglichkeit. Von hier aus gelangen Sie direkt auf die geschützte Loggia, die den Wohnraum harmonisch nach draussen erweitert – ein perfekter Ort, um die Aussicht zu geniessen und entspannte Stunden im Freien zu verbringen.

Die Wohnung verfügt über drei helle, gut geschnittene Schlafzimmer, die vielseitig genutzt werden können – ob als Rückzugsort, Homeoffice oder Gästezimmer. Zwei Badezimmer bieten zusätzlichen Komfort: ein grosszügiges Bad mit Doppelwaschbecken und Badewanne sowie ein weiteres mit Dusche und WC.

Der durchdachte Grundriss, der grosszügige Eingangsbereich sowie hochwertige Ausstattungsdetails wie Eichenparkett und Fussbodenheizung tragen zum angenehmen Wohngefühl bei. Ergänzt wird das Angebot durch praktische Nebenräume wie ein Kellerabteil sowie einen Garagen- und Aussenparkplatz.

Diese Wohnung vereint grosszügiges Wohnen, eine ruhige Lage und eine schöne Aussicht und eignet sich ideal für Paare, Familien oder alle, die das Leben in Triesen in vollen Zügen geniessen möchten.

 

Wenn Sie mehr über dieses Objekt erfahren möchten, rufen Sie uns an. Wir freuen uns auf Sie.

Beschreibung

In ruhiger, erhöhter und familienfreundlicher Lage in Triesen erwartet Sie diese attraktive 4.5-Zimmerwohnung mit grosszügigen Räumen, viel Tageslicht und einem durchweg angenehmen Wohnambiente. Die sonnige Aussichtslage mit Blick Richtung Rheintal unterstreicht die hohe Lebensqualität dieser Wohnlage und bietet ein ideales Zuhause für Menschen, die Ruhe und Weitsicht schätzen.

Der helle, offen gestaltete Wohn- und Essbereich bildet das Herzstück der Wohnung. Grosszügige Fensterfronten lassen viel natürliches Licht herein und schaffen eine freundliche, einladende Atmosphäre. Ein stilvolles Cheminée sorgt zusätzlich für wohlige Wärme und verleiht dem Raum eine besondere Behaglichkeit. Von hier aus gelangen Sie direkt auf die geschützte Loggia, die den Wohnraum harmonisch nach draussen erweitert – ein perfekter Ort, um die Aussicht zu geniessen und entspannte Stunden im Freien zu verbringen.

Die Wohnung verfügt über drei helle, gut geschnittene Schlafzimmer, die vielseitig genutzt werden können – ob als Rückzugsort, Homeoffice oder Gästezimmer. Zwei Badezimmer bieten zusätzlichen Komfort: ein grosszügiges Bad mit Doppelwaschbecken und Badewanne sowie ein weiteres mit Dusche und WC.

Der durchdachte Grundriss, der grosszügige Eingangsbereich sowie hochwertige Ausstattungsdetails wie Eichenparkett und Fussbodenheizung tragen zum angenehmen Wohngefühl bei. Ergänzt wird das Angebot durch praktische Nebenräume wie ein Kellerabteil sowie einen Garagen- und Aussenparkplatz.

Diese Wohnung vereint grosszügiges Wohnen, eine ruhige Lage und eine schöne Aussicht und eignet sich ideal für Paare, Familien oder alle, die das Leben in Triesen in vollen Zügen geniessen möchten.

 

Wenn Sie mehr über dieses Objekt erfahren möchten, rufen Sie uns an. Wir freuen uns auf Sie.

Details

Objekt Nr.
1850
Lage
ruhige, naturnahe Lage
Ort
Triesen
Strasse
Runkelsstrasse
Bezugstermin
ab Sommer 2026
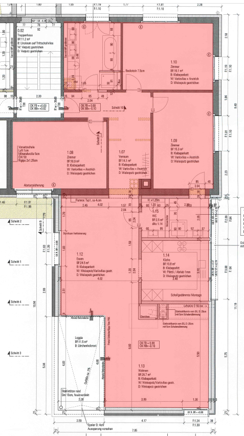
Fläche ca.
143m2
Grundriss
PDF
Stockwerk
EG
Anzahl Zimmer
4.5
Kaufpreis
auf Anfrage

Ausstattung

  • Grosszügiger Eingangsbereich 
  • Lichtdurchflutetes Wohn-/Esszimmer
  • Elternzimmer sowie zwei weitere Schlafzimmer
  • Badezimmer mit Dusche/Badewanne und Waschturm
  • Badezimmer mit Dusche
  • Cheminée
  • Eichenparkett
  • grosszügige Terrasse
Anmeldung
+423 375 80 80
Favorit
Drucken
Lageplan (Google Maps)
Teilen
Facebook
Twitter
E-Mail

Kontaktperson

Ing. Bau AG · Kompetenz in Immobilien
+423 375 80 80
vermietung(at)ingbau.li
  • Ing. Bau AG
    Immobilien
  • Rätikonstrasse 13
    Postfach 108
  • 9490 Vaduz
    Liechtenstein
  • T +423 375 80 80
    info(at)ingbau.li

Impressum
Datenschutz

Favoriten