Montag-Freitag
8–12 und 13.30–17.30 Uhr


Favoriten
Menü
  • Anmeldeformular
    • Anmeldeformular
    • Anmeldeformular für Mietinteressenten
  • Dienstleistungen
  • Unternehmen
  • Weblinks

Kontakt  Impressum  Datenschutz

  • Home
  • 1.0 Zi-Wohnung - 1.OG

Beschreibung

Das Mehrfamilienhaus steht an leicht erhöhter Lage in Vaduz. In wenigen Gehminuten befinden sich diverse Einkaufsmöglichkeiten sowie die öffentlichen Verkehrsmittel.

 

Im Eingangsbereich befindet sich eine Garderobe sowie die Nasszelle. Die gesamte Wohnung wurde mit hellem Parkett ausgestattet und verleiht der Wohnung eine gmütliche Atmosphäre. Die Küche sowie das Badezimmer wurden mit hellen Materialien ausgestattet. Vom Balkon aus geniessen Sie den Blick ins Grüne. 

 

Wenn Sie mehr über dieses Objekt erfahren möchten, rufen Sie uns an. Wir freuen uns auf Sie.

Beschreibung

Das Mehrfamilienhaus steht an leicht erhöhter Lage in Vaduz. In wenigen Gehminuten befinden sich diverse Einkaufsmöglichkeiten sowie die öffentlichen Verkehrsmittel.

 

Im Eingangsbereich befindet sich eine Garderobe sowie die Nasszelle. Die gesamte Wohnung wurde mit hellem Parkett ausgestattet und verleiht der Wohnung eine gmütliche Atmosphäre. Die Küche sowie das Badezimmer wurden mit hellen Materialien ausgestattet. Vom Balkon aus geniessen Sie den Blick ins Grüne. 

 

Wenn Sie mehr über dieses Objekt erfahren möchten, rufen Sie uns an. Wir freuen uns auf Sie.

Details

Objekt Nr.
1676
Lage
Leicht erhöhte Lage
Ort
Vaduz
Strasse
Dammweg 4
Bezugstermin
01.06.2026
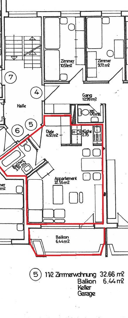
Fläche ca.
32m2
Grundriss
PDF
Stockwerk
1.OG
Anzahl Zimmer
1.0
Nettomietzins
CHF 680.-
Heiz-/Nebenkosten
CHF 140.- (Akonto)
Bruttomietzins
CHF 820.–
Autoabstellplatz
CHF 50.–

Ausstattung

  • Renovierte Kleinwohnung
  • Helle, moderne Küche
  • Badezimmer mit Badewanne/WC
  • Feinsteinzeugplatten
  • Parkett
  • Balkon mit Aussicht ins Grüne
  • Kellerabteil 
  • Waschmaschine/Wäschetrockner zur Mitbenützung im UG
  • Lift 
Anmeldung
+423 375 80 80
Favorit
Drucken
Lageplan (Google Maps)
Teilen
Facebook
Twitter
E-Mail

Kontaktperson

Ing. Bau AG · Kompetenz in Immobilien
+423 375 80 80
vermietung(at)ingbau.li

Ähnliche Immobilienobjekte

neuer Preis
4.0 Zi-Wohnung - Attika
CHF 3470.-
Vaduz
133 m2
neu am Markt
1.5 Zi-Wohnung - 3.OG
CHF 1000.-
Vaduz
33 m2
3.5 Zi-Wohnung - 2.OG
CHF 1932.-
Vaduz
85 m2
4.5 Zi-Wohnung - DG
CHF 2110.-
Vaduz
119 m2
  • Ing. Bau AG
    Immobilien
  • Rätikonstrasse 13
    Postfach 108
  • 9490 Vaduz
    Liechtenstein
  • T +423 375 80 80
    info(at)ingbau.li

Impressum
Datenschutz

Favoriten